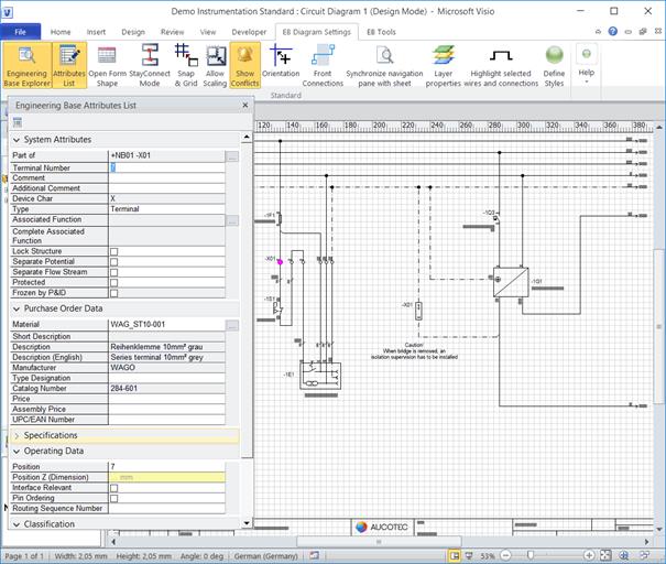
3.4 在Visio中打开的图纸可任意活动的“属性清单”
使用Visio中的任意活动的属性清单,可以快速高效地编辑当前标记形状的数据。
在此清单中,您可以编辑具有对象关系的符号以及新的、仍然未关联的符号。
要显示属性清单,请单击选项卡EB图纸设定上的属性清单按钮
。这将在Visio中将属性清单作为可任意活动的清单打开。你可以把它停留在你选择的位置。
如果您希望属性清单默认显示在Visio中打开的图纸中,请选中选项对话框的Visio设置中的在Visio视窗中显示属性列表选项。

单击
可按字母顺序对属性排序,或取消排序。
您可以使用箭头
和
展开和折叠各个选项卡。
单击标记符号的快捷菜单上的打开,打开修改对话框。