Verbindungsknoten per Mehrfachselektion editieren
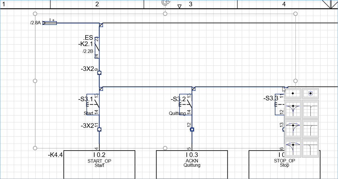
Engineering Base unterstützt verschiedene Typen von Verbindungsknoten. Mit Hilfe der Mehrfachauswahl ist es möglich, den Typ von mehreren Verbindungsknoten gleichzeitig, z. B. von Zwangsverdrahtung zu Busanschluss, zu ändern.
Wie Sie mehrere Verbindungsknoten gleichzeitig ändern
- Öffnen Sie den Stromlaufplan in Visio.
- Selektieren Sie die Verbindungsknoten unter Verwendung von z. B. Bereich auswählen.
- Klicken Sie mit der rechten Maustaste auf einen der Verbindungsknoten.
- Selektieren Sie im Kontextmenü den neuen Verbindungsknotentyp.
- Die ausgewählten Verbindungsknoten werden geändert.
- Speichern Sie das Blatt, um Ihre Änderungen beizubehalten.
